Hahnheim:
Attraktives Mehrfamilienhaus in Hahnheim
Objekt-Nr.: 234

Außenansicht

Wohnzimmer DG

Küche DG

Schlafzimmer DG

Büro DG

Duschbad DG

Flur DG

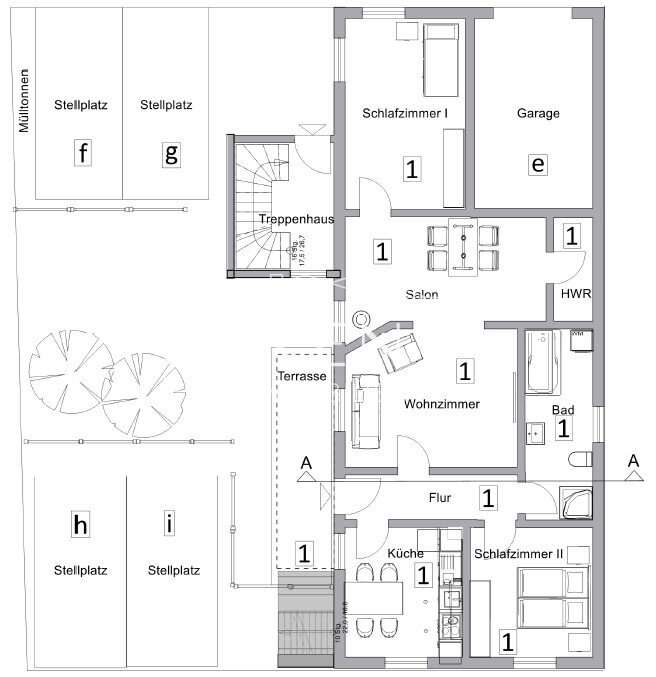
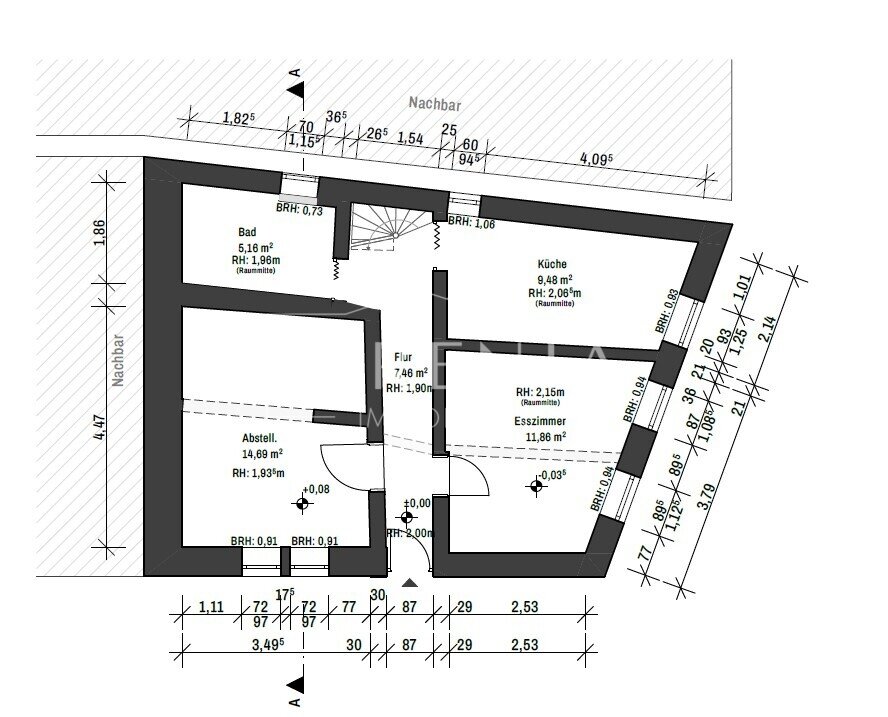
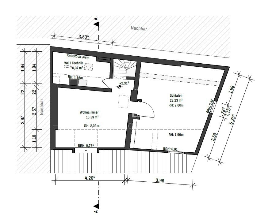
Grundriss EG

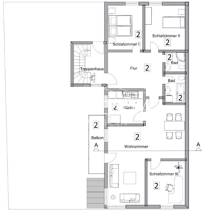
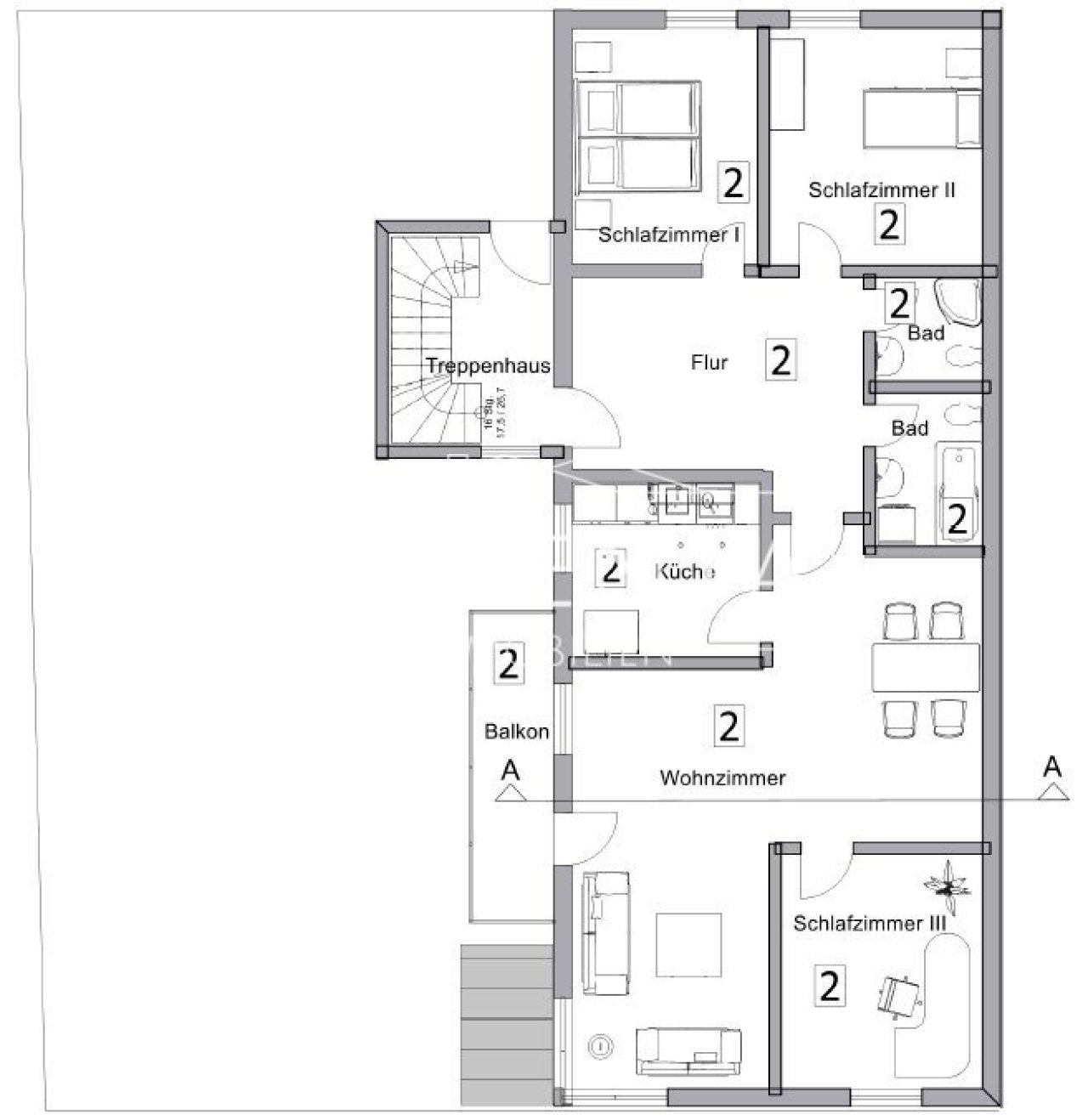
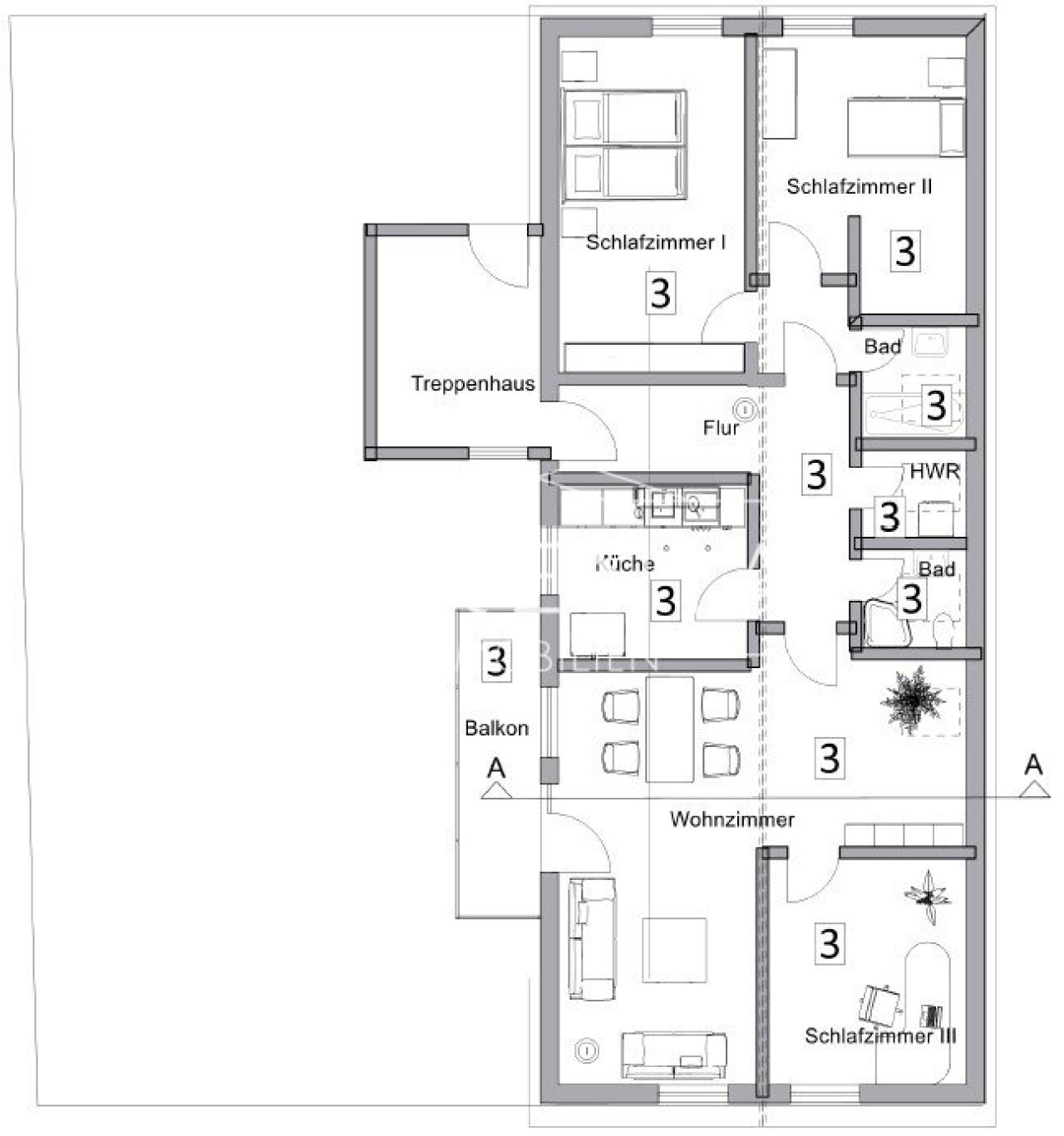
Grundriss OG

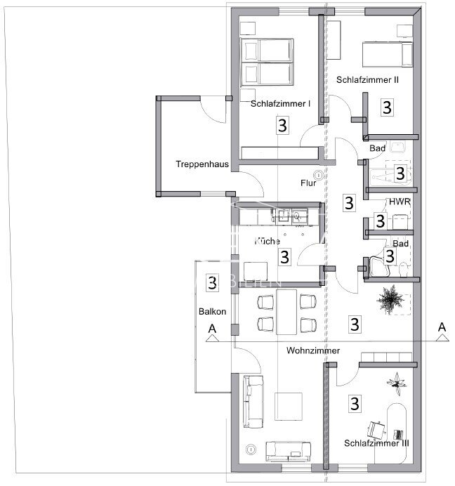
Grundriss DG










Preis:
648.500 €
Wohnfläche ca.:
317 m²
Grundstück ca.:
292 m²
Zimmeranzahl:
11
Dieses gepflegte Mehrfamilienhaus in ruhiger Lage von Hahnheim präsentiert sich als äußerst attraktive Kapitalanlage mit solider Mieterstruktur und nachhaltiger Rendite. Das Gebäude wurde 1995 kernsaniert und aufgestockt, inklusive umfassender Modernisierung von Elektrik, Sanitär, Dach und Fassade. Es beherbergt drei großzügige Wohneinheiten mit insgesamt rund 317 m² Wohnfläche auf einem Grundstück von 292 m².
Die Aufteilung ist ideal für die langfristige Vermietung:
- Erdgeschosswohnung: ca. 102 m² mit Terrasse und Zugang zum Garten
- Obergeschosswohnung: ca. 113 m² mit Balkon
- Dachgeschosswohnung: ca. 103 m² mit Balkon und alleiniger Nutzung des ausgebauten Dachbodens
- vier Pkw-Stellplätze und eine Garage
Alle Wohnungen sind hell, gut geschnitten und verfügen über zeitgemäße Grundrisse. Das Haus ist voll unterkellert und bietet dort drei separate Abstellräume sowie die Zentralheizung mit Warmwasserspeicher. Eine Garage im Erdgeschoss sowie vier zusätzliche Stellplätze auf dem Hof runden das Angebot ab.
Der gemeinschaftliche Garten mit separatem Fahrradhaus steht allen Mietern zur Verfügung und wird regelmäßig gepflegt. Die Immobilie überzeugt durch ihre solide Bauweise, eine funktionale Ausstattung und stabile Mieteinnahmen – ein echtes Rundum-sorglos-Paket für Kapitalanleger.
Die Bilder zeigen die Wohnung im Dachgeschoss.
Haustyp: Mehrfamilienhaus
Etagenanzahl: 3
Provisionspflichtig: nein
Anzahl Schlafzimmer: 8
Anzahl Badezimmer: 5
Balkon: 2
Terrasse: 1
Gäste-WC: ja
Garten: ja
Keller: voll unterkellert
vermietet: ja
Anzahl der Parkflächen: 4 x Außenstellplatz; 1 x Garage
Qualität der Ausstattung: normal
Baujahr: 1995
Mieteinnahmen p.a.: 40.980 €
Energieklasse: B
Heizung: Zentralheizung
Befeuerungsart: Gas
Energieausweistyp: Bedarfsausweis - gültig vom 28.06.2014 bis 27.06.2034
Energieeffizienz-Klasse: B
Baujahr laut Energieausweis: 1995
Die Vermittlung des Objekts ist provisionsfrei für den Käufer.
Die von uns gemachten Informationen beruhen auf Angaben des Verkäufers bzw. der Verkäuferin. Für die Richtigkeit und Vollständigkeit der Angaben kann keine Gewähr bzw. Haftung übernommen werden. Ein Zwischenverkauf und Irrtümer sind vorbehalten.
Wir weisen auf unsere Allgemeinen Geschäftsbedingungen hin. Durch weitere Inanspruchnahme unserer Leistungen erklären Sie die Kenntnis und Ihr Einverständnis.
Das könnte Ihnen auch gefallen
55278 Hahnheim
Rheinland-Pfalz































